Simklubben Sydsim logo
Simklubben Sydsim
Burlövs största simklubb

Barn & Ungdomar med särskilda behov

Här hittar ni mer info om Sydsims verksamhet för barn med särskilda behov. 

Klicka gärna runt och läs vad vi kan erbjuda i simundervisningsväg. 

 

Vecka 44 - Höstlov
2025-09-11 13:22

Vecka 44 är det Höstlov!

Då är all undervisning för verksamheten barn med särskilda behov lediga. 

 

Inför höstterminen 2025
2025-06-24 16:06
Höstens roligaste aktivitet!

Inför höstterminen 2025 tänker vi erbjuda er som redan har en plats i verksamheten barn med särskilda behov att behålla er tid om ni vill. (Kanske några små ändringar kan hända)

I vecka 27 kommer det att göras ett mejlutskick. Här kan ni antingen tacka JA till platsen som ni har blivit erbjuden och då kommer det en bekräftelse/faktura till er via mejl, eller så tackar man NEJ till platsen och då går platsen vidare till någon annan som står på köplats.

 

Startar: v.35

Slutar: v.48 - 13st simlektioner

Uppehåll: höstlov v.44

 

För att se en tydligare bild på terminsplaneringen för höstterminen 2025  Klicka Här

Nu finns det bilder från nya Burlövsbadet
2022-02-17 12:43

Nu finns det mer bilder och info om Nya Burlövsbadet och de ytor som verksamheten för BMSB ska vistas på. 

 

Klicka på länken så kommer ni till rätt sida här på hemsidan: Upplägg->Nya Burlövsbadet 

 

Nu flyttar vi snart in!
2022-02-17 12:22

Nya Burlövsbadet står klart och kommunen håller på att komma i ordning på badet. 

Under v.11 flyttar Sydsims verksamhet in på badet vilket innebär att vi avslutar period 1 där inne. 

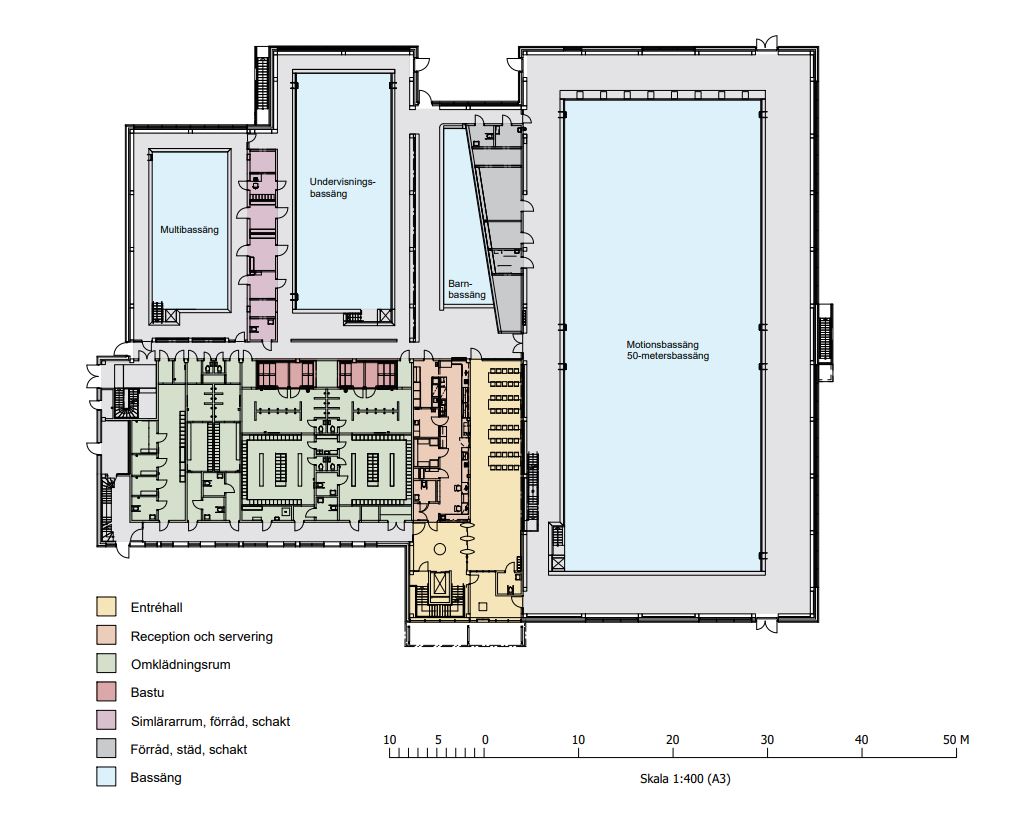
Ovan ser ni en ritning på hur det nya badet i princip ser ut och den är hämtad från Burlövs hemsida. 

Verksamheten för BMSB kommer att hålla till i bassängen som heter multibassäng så vi kommer vara i ett egen rum där poolen har höj- och sänkbar botten, bassängen är 17x8 m och temperaturen är ca 32 grader. 

 

Vår del av verksamheten kommer kunna byta om i de tre bortersta omklädningsrummen som heter; Grupprum 1 (flickor), grupprum 2 (pojkar) och Flexi (för de som behöver assistans av motsatt kön eller har gåstöd). 

 

När man kommer ut från dessa omklädningsrum kommer man rakt till dörren som leder in i multibassängen så ni kommer inte behöva gå runt inne på hela badet eller liknande så det är väldigt bekvämt och praktiskt för oss. 

 

För de av er föräldrar som vill motionssimma medan barnen simmar hos oss finnns den möjligheten då Burlövsbadet nu utökat sina öppettider för motionssimning, tänk bara på att lösa en biljett när ni kommer så ni kan gå och simma. för mer info klicka på länken: https://www.burlov.se/kulturfritid/burlovsbadet.4.7654173515940622032d762f.html 

 

Bilder och mer info kommer i en egen post här på hemsidan under fliken: Upplägg -> Nya Burlövsbadet

 

/Maria 

 

 

Tips på övningar under uppehållet
2020-11-02 14:36
Medan vi har en liten paus i simundervisningen vill vi tipsa er föräldrar om små övningarna som kan göras hemma för att underlätta siminlärningen för oss.

  • Snurra båda armarna framåt 10ggr
  • Snurra båda armarna bakåt 10 ggr
  • Snurra armarna framåt en åt gången (börja med armarna rakt upp) 10 ggr
  • Surra armar bakåt en åt gången (börja med armarna rakt upp) 10 ggr
Viktigt att barnen har raka armar när de snurra och gör det gärna framför en spegel så de får se sig själva med de gör övningen. 

  • Hoppa jämfota som en tennisboll 10ggr
  • Hoppa som en badboll (från hukande läge och sedan rakt upp) 5 ggr
  • Hoppa TA-gubbe (barnen står som ett T; armar rakt ut och ben ihop och hoppar för att samtidigt bytta till A där benen är utåt och armarna rakt ner mot kroppen) 10 ggr
  • Ligg på ryggen med händerna under rumpan och lyft benen ca 10cm från marken och sparka i 10 sek

Har ni barn som är lite rädda eller otrygga i vattnet kan ni fylla vatten i badkaret eller vasken och öva på att doppa...
  • Öron
  • Mun (blås gärna ut med munnen så det blir bubblor)
  • Näsa (säger de Mmmmm med stängd mun kommer det bubbla från näsan)
  • Ögon (man får blunda)
  • Panna
  • Huvud

Där har ni lite övningarna som kan aktivera barnen lite men även hjälper oss när de kommer tillbaka till simningen!

Ha det fint så länge.
/Maria 

Barn/Ungdomar med särskilda behov
2018-05-30 10:33

Hos Sydsim är vårt mål att alla deltagare ska känna sig välkomna och inkluderade i vår undervisning/träning. 
Sydsim har valt att satsa på undervisning för barn och ungdomar med funktionsnedsättningar fr o m hösten 2018. Vi kommer att använda oss av både inkluderad och integrerad verksamhet. Det innebär att en del gånger kan vi erbjuda undervisning i våra ordinarie grupper och en del gånger kan vi främst erbjuda undervisning i mini grupper á 2-3 deltagare alt. privatundervisning. 

Sydsim erbjuder därmed följande upplägg:

  • Många barn med olika funktionsnedsättningar klarar sig bra i vår verksamhet utan en resurs. Det gäller bl.a. barn med ADHD, lindriga CP-skador och lindrig Autism.  För dessa barn erbjuder vi undervisning i våra ordinarie grupper men där vi ber föräldrarna kontakta oss för råd och hjälp vid anmälan. 
  • För en del barn med funktionsnedsättningar krävs lite extra hjälp med undervisningen för att klara sig i vattnet och det kan vara allt från hjälp med kommunikationen till stöd i vattnet pga. rörelsehinder. Här erbjuder vi integrerad undervisning med en av våra resursledare.

Informationen ovan innebär självklart inte att alla barn med angivna diagnoser klarar sig utan extra stöd. Är ni som föräldrar osäkra ska ni kontakta kansliet så försöker vi hitta den bästa lösningen. 

 

Hur går det till 

Har ni barn med funktionsnedsättning är det alltid en god idé att kontakta vårt kansli för att få hjälp med lämplig grupp, boka ett prova på och få prata med någon sakkunnig som kan hjälpa er få rätt förutsättningar för en god undervisning hos oss i Sydsim. 

  • Ni mejlar kansliet hos Sydsim (kansli@sydsim.nu) där ni uppger ert barns namn, ålder, diagnos,  ev. förkunskaper inom simning/vattenvana, om ert barn går i särskild skola alt har extra stöd i en  ordinarie klass i skolan. 
  • Vi svarar sedan på detta mejl och bokar in er för ett prova på tillfälle på ca 10 min.
  • Efter Prova-på tillfället får ni info om en grupprekommendation samt om vi anser att ert barn        behöver extra stöd eller ej i vår simskola.
  • För tillvägagångssätt vid anmälan läs infon nedan.

 

Anmäla barn till simskola:

Om ni som föräldrar fått en rekommendation att ert barn är i behov av extra stöd måste ni genomföra er anmälan enligt ovan för att vi ska kunna erbjuda er en resurs alt. lämplig grupp. Vi har ett begränsat antal resurser i vår verksamhet och kan därför inte garantera att alla som söker simskola med resurs varje termin kan få plats men vi tar emot barn i mån av resurser och möjlighet.

Om ni som föräldrar fått en rekommendation att ert barn inte är i behov av extra stöd ska ni kontakta simskoleansvarig Malin Algotsson på malin@sydsim.nu så hjälper hon er hitta en lämplig grupp, dag och tid för ert barn att simma i vår simskola.  Genom att anmäla via Malin får också de framtida ledarna information om ert barns diagnos och på så sätt är de förbereda på att det kan påverka ert barns inlärning till vis del.

Kommande aktiviteter
Inga aktiviteter inbokade
Nyheter från föreningen
Hem, 04/12 14:20 
Hem, 26/11 11-26 
Hem, 28/10 12:02 
Hem, 23/09 10:36 
Hem, 19/08 15:25 
Hem, 26/06 14:47 
Hem, 09/06 13:02 
Hem, 06/12 11:04 
Hem, 02/02 15:29 
Våra samarbets partners